吹田市南吹田1丁目の倉庫 2階建

275万円 (管理費等:- )

敷金
0ヶ月
礼金
0ヶ月
  • 1-2階
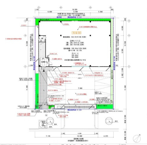
  • 159.26坪(526.50㎡)

☆新築☆ 貸倉庫事務所 1階約73.73坪・2階約85.53坪 ◇前面駐車スペース有 ◇JRおおさか東線【南吹田駅】徒歩約3分

基本情報 情報の見方

賃料 275万円

初期費用シミュレーション

  • 賃料

  • 管理費・共益費

  • 保証金:

  • 礼金

  • 仲介手数料 ※1

  • 前家賃(日割り)

    0

  • 合計

※1. 仲介手数料は仮の価格となりますので、実際の価格に関してはお気軽にお問い合わせください。

※2. 1ヶ月を30日として計算しています。

※3. その他費用の項目は、貸主指定家賃保証料になります。

管理費等 -
敷金(保証金) 0ヶ月(2,500万円)
礼金 0ヶ月
償却 / 敷引 825万円 / -
面積(坪数) 526.50㎡(159.26坪)
坪単価 1.73万円
向き -
築年月 2026年 7月 (予定)
用途地域 -
種別 / 構造 倉庫 / 鉄骨造
部屋 /
所在階 / 階建
2階建 / 1-2階 / 2階建
所在地
大阪府吹田市南吹田1丁目
交通

■竣工2026年7月末予定■JRおおさか東線「南吹田」駅 徒歩3分■第二種住居地域
■敷地面積 約160坪■建物面積 1階 約73坪 2階85坪

地図アプリで開く

※地図上に表示される物件の位置は付近住所に所在することを表すものであり、実際の物件所在地とは異なる場合がございます。

特徴

設備条件
    備考 坪単価約17267円、道路:南東側:22m、入居にともなう改装工事については当社指定業者工事とさせていただきます、確認済証番号:令和7年11月20日 第R07確認建築近確0001891号、1Fフリースペース フォークリフト用電源、電動シャッター・2Fオフィススペース 個別空調、OAフロア、男女別トイレ、太陽光発電、現状渡し。
    条件(その他) 貸主指定家賃保証料:275万円

    物件概要

    駐車場 / 月額料金 有 / 0円
    更新料 -
    契約期間 2年
    現況 未完成
    引渡時期 2026年08月上旬予定
    雑費 / 権利金 -/-
    保険加入 / 料金 有 / -
    保険名 / 保険期間 火災保険 / -
    保証人代行義務 必加入
    保証会社詳細 貸主指定家賃保証会社
    取引態様 仲介
    物件番号 99785525
    取扱会社
    • 株式会社ステージ
    • 大阪府大阪市北区天満2丁目8-17 天満橋パークビル 601号
    • TEL:-
    • 国土交通大臣 (1) 第10705号
    • 公益社団法人全日本不動産協会
      公益社団法人不動産保証協会
      不動産公正取引協議会連合会
    情報更新日 2026年01月08日
    更新予定日 2026年01月22日