- 物件検索
- 閲覧履歴
- メニュー
おすすめの検索キーワード
カテゴリから探す
×閉じる
×閉じる
東大阪市新上小阪の倉庫 2階建
13.2万円 (管理費等:- )
- 敷金
- 0ヶ月
- 礼金
- 0ヶ月
- 1-2階
- 23.80坪(78.68㎡)
基本情報 情報の見方
| 賃料 |
13.2万円
初期費用シミュレーション
※1. 仲介手数料は仮の価格となりますので、実際の価格に関してはお気軽にお問い合わせください。 ※2. 1ヶ月を30日として計算しています。 ※3. その他費用の項目は、貸主指定保証人代行会社になります。 |
|---|---|
| 管理費等 | - |
| 敷金(保証金) | 0ヶ月(79.2万円) |
| 礼金 | 0ヶ月 |
| 償却 / 敷引 | 52.8万円 / - |
| 面積(坪数) | 78.68㎡(23.80坪) |
| 坪単価 | 0.55万円 |
| 向き | - |
| 築年月 | 1990年 8月 (築35年) |
| 用途地域 | 第一種住居 |
| 種別 / 構造 | 倉庫 / 鉄骨造 |
| 部屋 / 所在階 / 階建 |
2階建 / 1-2階 / 2階建 |
| 所在地 | |
| 交通 |
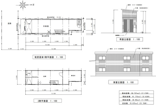
◆2階建貸倉庫(1階倉庫:約12.6坪 2階倉庫・事務所:約12.6坪)、前面駐車スペース有り◆
※地図上に表示される物件の位置は付近住所に所在することを表すものであり、実際の物件所在地とは異なる場合がございます。
特徴
| 設備条件 |
|
|---|---|
| 備考 | 坪単価約5,546円、電気、動力電源、上下水道、トイレ専用、シャワー、エアコン、モニター付きインターホン、駐車スペース1台、電動シャッター、LED照明、現状渡し。 |
| 条件(その他) | 貸主指定保証人代行会社:13万2,000円 |
物件概要
| 駐車場 / 月額料金 | 有 / 0円 |
|---|---|
| 更新料 | - |
| 契約期間 | 2年 |
| 現況 | 空家 |
| 引渡時期 | 即時 |
| 雑費 / 権利金 | -/- |
| 保険加入 / 料金 | 有 / - |
| 保険名 / 保険期間 | 火災保険 / - |
| 保証人代行義務 | 必加入 |
| 保証会社詳細 | 貸主指定保証人代行会社 |
| 取引態様 | 仲介 |
| 物件番号 | 45465343 |
| 取扱会社 |
|
| 情報更新日 | 2026年01月12日 |
| 更新予定日 | 2026年01月20日 |
2階建倉庫 延べ約25.28坪(1階:約12.6坪 2階:約12.6坪) 駐車スペース1台可 2階事務所スペースあり 電源充実