川西市火打2丁目の倉庫 2階建

37.4万円 (管理費等:- )

敷金
-
礼金
0ヶ月
  • 1-2階
  • 77.88坪(257.48㎡)

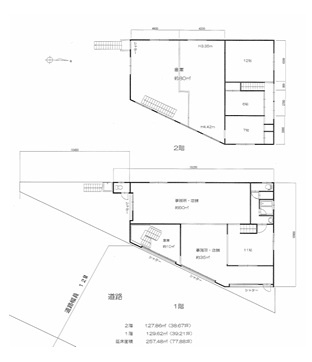
延べ約77.88坪 2階建貸倉庫(1階129.62㎡・2階127.86㎡) 

基本情報 情報の見方

賃料 37.4万円

初期費用シミュレーション

  • 賃料

  • 管理費・共益費

  • 保証金:

  • 礼金

  • 仲介手数料 ※1

  • 前家賃(日割り)

    0

  • 合計

※1. 仲介手数料は仮の価格となりますので、実際の価格に関してはお気軽にお問い合わせください。

※2. 1ヶ月を30日として計算しています。

※3. その他費用の項目は、貸主指定家賃保証料になります。

管理費等 -
敷金(保証金) -(2ヶ月)
礼金 0ヶ月
償却 / 敷引 1ヶ月 / -
面積(坪数) 257.48㎡(77.88坪)
坪単価 0.48万円
向き -
築年月 1974年 3月 (築51年)
用途地域 -
種別 / 構造 倉庫 / 鉄骨造
部屋 /
所在階 / 階建
2階建 / 1-2階 / 2階建
所在地
兵庫県川西市火打2丁目
交通

◇能勢電鉄妙見線絹延橋駅 徒歩11分 延べ約77.88坪 2階建貸倉庫(1階129.62㎡・2階127.86㎡)

地図アプリで開く

※地図上に表示される物件の位置は付近住所に所在することを表すものであり、実際の物件所在地とは異なる場合がございます。

特徴

設備条件
    備考 坪単価約4802円、トイレ専用、接道状況:南東側公道 幅員12.0m、スケルトン渡し(応相談)。
    条件(その他) 貸主指定家賃保証料:37万4,000円

    物件概要

    駐車場 / 月額料金 - / -
    更新料 -
    契約期間 2年
    現況 空家
    引渡時期 相談
    雑費 / 権利金 -/-
    保険加入 / 料金 有 / -
    保険名 / 保険期間 火災保険 / -
    保証人代行義務 必加入
    保証会社詳細 貸主指定家賃保証会社
    取引態様 仲介
    物件番号 98826246
    取扱会社
    • 株式会社ステージ
    • 大阪府大阪市北区天満2丁目8-17 天満橋パークビル 601号
    • TEL:-
    • 国土交通大臣 (1) 第10705号
    • 公益社団法人全日本不動産協会
      公益社団法人不動産保証協会
      不動産公正取引協議会連合会
    情報更新日 2025年12月02日
    更新予定日 2025年12月16日