神戸市東灘区魚崎南町3丁目の倉庫 2階建

302.5万円 (管理費等:- )

敷金
0ヶ月
礼金
0ヶ月
  • 1-2階
  • 189.48坪(626.40㎡)

☆新築☆ 2階建貸倉庫事務所 ◇1階94.74坪・2階94.74坪 ◇前面駐車スペース有 

基本情報 情報の見方

賃料 302.5万円

初期費用シミュレーション

  • 賃料

  • 管理費・共益費

  • 保証金:

  • 礼金

  • 仲介手数料 ※1

  • 前家賃(日割り)

    0

  • 合計

※1. 仲介手数料は仮の価格となりますので、実際の価格に関してはお気軽にお問い合わせください。

※2. 1ヶ月を30日として計算しています。

※3. その他費用の項目は、貸主指定家賃保証料になります。

管理費等 -
敷金(保証金) 0ヶ月(2,750万円)
礼金 0ヶ月
償却 / 敷引 907.5万円 / -
面積(坪数) 626.40㎡(189.48坪)
坪単価 1.6万円
向き -
築年月 2026年 5月 (予定)
用途地域 準工業
種別 / 構造 倉庫 / 鉄骨造
部屋 /
所在階 / 階建
2階建 / 1-2階 / 2階建
所在地
交通

地図アプリで開く

※地図上に表示される物件の位置は付近住所に所在することを表すものであり、実際の物件所在地とは異なる場合がございます。

特徴

設備条件
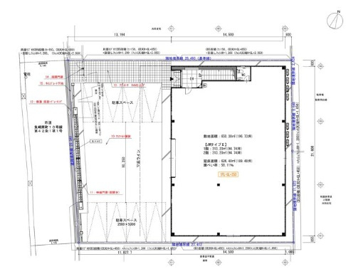
    備考 坪単価約15964円、接道状況:西側:6.14m、1Fフリースペース:フォークリフト用電源・電動シャッター、2Fオフィススペース:個別空調・OAフロア・男女別トイレ、入居にともなう改装工事については当社指定業者工事とさせていただきます
    条件(その他) 貸主指定家賃保証料:302万5,000円

    物件概要

    駐車場 / 月額料金 有 / 0円
    更新料 -
    契約期間 2年
    現況 未完成
    引渡時期 2026年06月上旬予定
    雑費 / 権利金 -/-
    保険加入 / 料金 有 / -
    保険名 / 保険期間 火災保険 / -
    保証人代行義務 必加入
    保証会社詳細 貸主指定家賃保証会社
    取引態様 仲介
    物件番号 99396675
    取扱会社
    • 株式会社ステージ
    • 大阪府大阪市北区天満2丁目8-17 天満橋パークビル 601号
    • TEL:-
    • 国土交通大臣 (1) 第10705号
    • 公益社団法人全日本不動産協会
      公益社団法人不動産保証協会
      不動産公正取引協議会連合会
    情報更新日 2026年01月08日
    更新予定日 2026年01月22日