- 物件検索
- 閲覧履歴
- メニュー
おすすめの検索キーワード
カテゴリから探す
×閉じる
×閉じる
摂津市東別府4丁目の倉庫 平屋建
385万円 (管理費等:- )
- 敷金
- 6ヶ月
- 礼金
- 2ヶ月
- 1階
- 548.73坪(1814.00㎡)
基本情報 情報の見方
| 賃料 |
385万円
初期費用シミュレーション
※1. 仲介手数料は仮の価格となりますので、実際の価格に関してはお気軽にお問い合わせください。 ※2. 1ヶ月を30日として計算しています。 ※3. その他費用の項目は、貸主指定家賃保証料になります。 |
|---|---|
| 管理費等 | - |
| 敷金(保証金) | 6ヶ月(-) |
| 礼金 | 2ヶ月 |
| 償却 / 敷引 | - / - |
| 面積(坪数) | 1814.00㎡(548.73坪) |
| 坪単価 | 0.7万円 |
| 向き | - |
| 築年月 | 1987年 11月 (築38年) |
| 用途地域 | 第一種住居 |
| 種別 / 構造 | 倉庫 / 鉄骨造 |
| 部屋 / 所在階 / 階建 |
平屋建 / 1階 / 1階建 |
| 所在地 | |
| 交通 |
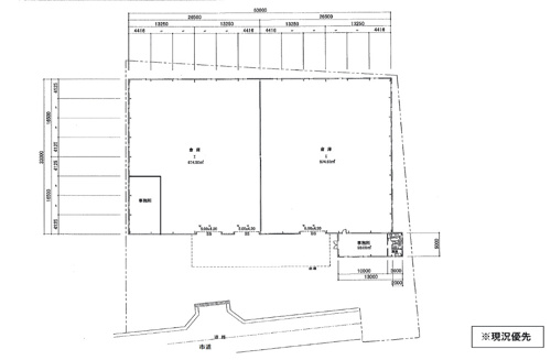
◇平屋建一棟貸倉庫 延べ約548坪 敷地約919坪(駐車場有り)◇近畿道 アクセス良好
※地図上に表示される物件の位置は付近住所に所在することを表すものであり、実際の物件所在地とは異なる場合がございます。
特徴
| 設備条件 |
|
|---|---|
| 備考 | 坪単価約7016円、倉庫1749㎡(約529.07坪)事務所65㎡(約19.66坪)、トイレ有り、軒高9m、駐車場有り、現状渡し。 |
| 条件(その他) | 貸主指定家賃保証料:385万円 |
物件概要
| 駐車場 / 月額料金 | 有 / 0円 |
|---|---|
| 更新料 | - |
| 契約期間 | 2年 |
| 現況 | 賃貸中 |
| 引渡時期 | 2026年06月上旬予定 |
| 雑費 / 権利金 | -/- |
| 保険加入 / 料金 | 有 / - |
| 保険名 / 保険期間 | 火災保険 / - |
| 保証人代行義務 | 必加入 |
| 保証会社詳細 | 貸主指定家賃保証会社 |
| 取引態様 | 仲介 |
| 物件番号 | 65928321 |
| 取扱会社 |
|
| 情報更新日 | 2025年12月02日 |
| 更新予定日 | 2025年12月16日 |
平屋建一棟貸倉庫 延べ約548坪 敷地約919坪(駐車場有り)◇近畿道 アクセス良好