泉北郡忠岡町忠岡北1丁目の倉庫 2階建

33万円 (管理費等:- )

敷金
2ヶ月
礼金
2ヶ月
  • 1-2階
  • 94.42坪(312.16㎡)

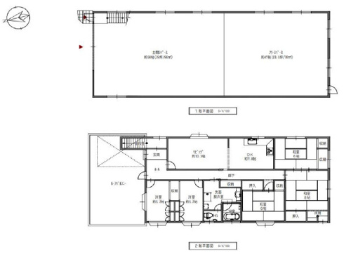
住宅付貸倉庫(2階建) 1階倉庫約175.49㎡・2階5LDK 約138.67㎡ ◇ネット通販・貿易会社、作業場等に最適 ◇駐車場3台分

基本情報 情報の見方

賃料 33万円

初期費用シミュレーション

  • 賃料

  • 管理費・共益費

  • 敷金:

  • 礼金

  • 仲介手数料 ※1

  • 前家賃(日割り)

    0

  • 合計

※1. 仲介手数料は仮の価格となりますので、実際の価格に関してはお気軽にお問い合わせください。

※2. 1ヶ月を30日として計算しています。

※3. その他費用の項目は、貸主指定家賃保証になります。

管理費等 -
敷金(保証金) 2ヶ月(-)
礼金 2ヶ月
償却 / 敷引 - / -
面積(坪数) 312.16㎡(94.42坪)
坪単価 0.35万円
向き -
築年月 1970年 10月 (築55年)
用途地域 準工業
種別 / 構造 倉庫 / 鉄骨造
部屋 /
所在階 / 階建
2階建 / 1-2階 / 2階建
所在地
大阪府泉北郡忠岡町忠岡北1丁目
交通

◆住宅付貸倉庫(2階建)1階倉庫約175.46㎡・2階5LDK約138.67㎡

地図アプリで開く

※地図上に表示される物件の位置は付近住所に所在することを表すものであり、実際の物件所在地とは異なる場合がございます。

特徴

設備条件
    備考 坪単価約3495円、都市ガス、電気、上下水道、トイレ専用、温水洗浄便座、浄化槽、給湯、バス・トイレ別、駐車場3台分、倉庫 高さ約3.5m 間口約8.75m、接道状況:西側私道 接面8.7m 幅員3.0m、現状渡し。
    ※ハウスクリーニング代・鍵交換代要
    ※短期解約違約金有り
    ※前面道路入口の電柱は撤去されました
    条件(その他) 貸主指定家賃保証:25万3,000円

    物件概要

    駐車場 / 月額料金 - / -
    更新料 -
    契約期間 2年
    現況 居住中
    引渡時期 相談
    雑費 / 権利金 -/-
    保険加入 / 料金 有 / -
    保険名 / 保険期間 火災保険 / -
    保証人代行義務 必加入
    保証会社詳細 貸主指定保証人代行会社
    取引態様 仲介
    物件番号 70818044
    取扱会社
    • 株式会社ステージ
    • 大阪府大阪市北区天満2丁目8-17 天満橋パークビル 601号
    • TEL:-
    • 国土交通大臣 (1) 第10705号
    • 公益社団法人全日本不動産協会
      公益社団法人不動産保証協会
      不動産公正取引協議会連合会
    情報更新日 2026年03月03日
    更新予定日 2026年03月17日